封闭式插板阀
产品概况
产品型号:CZ( 7) 49X - 0.5(2.5)QCZ( 7) 43X - 0.5 ( 2.5)
公称通径:DN800~2600mm
公称压力:PN0.1~0.4MPa
驱动方式:气动、电动、液动、电液动
适用温度:120℃ 200℃ 300℃ 450℃
适用介质:煤气及有毒
封闭式插板阀产品结构特点:
1、阀门采用全封闭结构,操作时介质不会向外泄漏,操作安全环境污染。
2、阀体采用整体框架式结构,刚性好,能承受高的介质压力。
3、密封副部位采用不锈钢与橡胶密封,密封圈为双凸型密封可靠。
4、密封圈装在阀板上,便于更换。
5、伸缩体与固定套之间采用多层波纹管连接,适用寿命长,密封更可靠,波纹管内安装填料式耐磨套,粉尘不进入波纹管内。
6、夹紧机构采用闭环式多点夹紧,同步性好。
7、特制的控杆和顶轮机构,确保阀板运行无摩擦。
8、设有氮气吹扫孔,以便吹扫阀座和传动部位积灰,开启灵活。
9、底部设有排水管接口,将阀箱内积水排出。
10、夹紧、松开和阀板行走采用全电动驱动。操作方便,性能稳定,电装带手动机构,手、电动可实现无忧动切换。
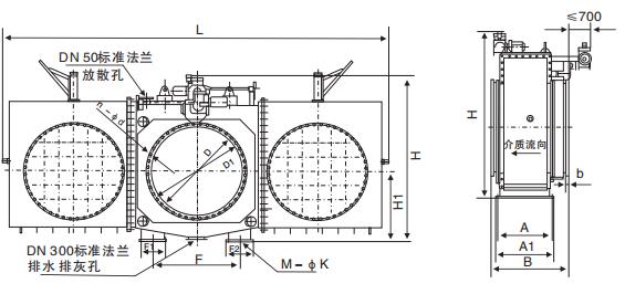
封闭式插板阀产品主要尺寸:

|
DN |
L |
D |
D1 |
b |
n-d |
L1 |
H |
H1 |
B |
B1 |
A |
C |
C1 |
C2 |
e1 |
e2 |
n1-d1 |
|
800 |
3900 |
975 |
920 |
26 |
24-30 |
1545 |
1970 |
750 |
1070 |
650 |
1150 |
950 |
350 |
300 |
250 |
220 |
12-32 |
|
900 |
4400 |
1075 |
1020 |
28 |
24-30 |
2200 |
2028 |
890 |
1100 |
700 |
1150 |
950 |
350 |
300 |
250 |
220 |
12-32 |
|
1000 |
4735 |
1175 |
1120 |
30 |
28-30 |
2368 |
2230 |
960 |
1100 |
700 |
1250 |
950 |
350 |
300 |
250 |
220 |
12-32 |
|
1200 |
6214 |
1375 |
1320 |
30 |
32-30 |
3105 |
2570 |
1060 |
1100 |
700 |
1450 |
950 |
300 |
300 |
250 |
220 |
12-32 |
|
1400 |
6915 |
1575 |
1520 |
30 |
36-30 |
3400 |
2850 |
1180 |
1200 |
800 |
1450 |
950 |
350 |
300 |
250 |
220 |
12-32 |
|
1600 |
7630 |
1790 |
1730 |
30 |
40-30 |
3600 |
3150 |
1350 |
1200 |
800 |
1150 |
920 |
250 |
720 |
475 |
630 |
16-26 |
|
1800 |
8068 |
1990 |
1930 |
30 |
44-30 |
3700 |
3565 |
1580 |
1400 |
950 |
1150 |
920 |
250 |
720 |
475 |
630 |
16-26 |
|
2000 |
8718 |
2190 |
2130 |
30 |
48-30 |
3855 |
3825 |
1720 |
1500 |
950 |
1924 |
1044 |
522 |
720 |
280 |
512 |
16-26 |
|
2200 |
9320 |
2405 |
2430 |
32 |
52-33 |
4285 |
4150 |
1820 |
1550 |
950 |
2030 |
1044 |
522 |
810 |
280 |
606 |
16-26 |
|
2400 |
10000 |
2605 |
2540 |
32 |
56-33 |
4615 |
4660 |
1960 |
1550 |
1016 |
2130 |
1130 |
565 |
820 |
300 |
710 |
16-26 |
|
2600 |
10700 |
2805 |
2740 |
34 |
60-33 |
5100 |
5150 |
2050 |
1550 |
1016 |
2130 |
1130 |
565 |
820 |
300 |
710 |
16-26 |
温馨提示:
本文中所有文字、数据、图片均只适用于参考。需要查看更多的封闭式插板阀性能参数、结构尺寸参数、价格等详情,或要求高质量印刷样本,请联系我们。