F9T43X电动推杆盲板阀
产品概况
产品型号:F9T43X
公称通径:DN300~2000mm
公称压力:PN0.05~0.25MPa
适用温度:≤300℃
适用介质:煤气及有毒、有害、易燃气体
主要材料:碳钢、不锈钢、硅橡胶
驱动方式:电动、液动、气动、电液动
设计标准:API 600、API6D、ASME B16.34、GB/T 12234
结构长度:ASME B16.10、API6D、GB/T 12221
连接标准:ASME B16.5、ASME B16.47、GB/T 9113、JB/T 79、HG/T 20592
压力试验:API 598、GB/T 13927、JB/T 9092
压力-温度等级:ASME B16.34 、GB/T 12224
一、F9T43X电动推杆盲板阀产品概述
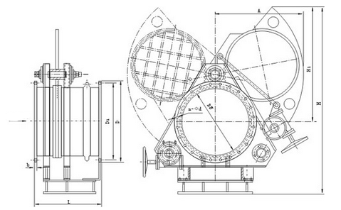
百钢阀门集团生产销售的F9T43X电动推杆盲板阀又名电动推杆扇形眼镜阀,电动推杆扇形翻板,主要由左阀体、右阀体、阀杆、闸板、密封圈、电动推杆等零件组成,并由底座、支撑柱构成一个刚性结构体。密封部位采用不锈钢与橡胶密封圈,密封性能好,使用寿命长,密封圈设置闸板上,易于维护时更换密封圈,橡胶密封圈镶钳在闸板上。电动推杆盲板阀可以单台远距离控制,亦可多台联网远距离控制,非正常情况下还可以利用阀门本身装置手动操作。
二、F9T43X电动推杆盲板阀产品特点
1、阀门在开关过程中,门板密封圈无磨损现象,密封性能稳定且密封圈易更换。
2、传动运用连杆机构原理,结构简单适用于环境苛刻的工作场地,传递行程准确并使夹紧机构的三处夹紧点的夹紧力均匀。
3、考虑到盲板阀的结构特点,对盲板阀两处密封薄弱处进行刚性加强处理,使密封性能更加可靠。
4、电动推杆定位采用新型的电感电器,减少在发讯时可能产生不必要的火花,使用更安全。
5、由于煤气流动时,容易对阀中的不锈钢伸缩波纹管有冲刷磨损现象,本阀在设计时在管路里腔波纹管导流套采用耐磨性能好的16Mn钢板同时增加其厚度。
6、密封圈材质选用耐高温和耐煤气较好的氟橡胶。
三、F9T43X电动推杆盲板阀适用范围
F9T43X电动推杆盲板阀是按GB6222《工业企业煤气安全规程》的有关标准同时消化吸收国内外技术基础上,自行研制开发的新一代产品,主要应用于各工矿企业,环境保护等行业的煤气、空气、烟气等气体介质管路中,作为切断各种有毒、有害的可靠装置。
四、F9T43X电动推杆盲板阀工作原理
首先电动夹紧推杆通过电机驱动,将推力经过曲柄直接作用在主动夹紧螺纹阀杆上,使其旋转并通过连杆机构使三根螺纹阀杆做同步旋转,带动各自相应的左、右阀杆螺母,使左阀体和中阀体在压缩波纹管的同时以阀板为中心的相对移动,使门板密封圈完全脱离两阀体密封圈。再启动电动行走推杆推力将门板的盲圈和通圈更换,电动夹紧推杆再次动作,将夹紧门板橡胶密封圈,从而达到阀门密封。门板是由盲板和通圈组成,当加紧机构松开后门板旋转变换位置即可实现阀门开关。
五、F9T43X电动推杆盲板阀技术参数
|
公称压力PN(MPa) |
0.25 |
0.15 |
0.10 |
0.05 |
|
密封试验压力(MPa) |
0.275 |
0.165 |
0.11 |
0.055 |
|
强度试验压力(MPa) |
0.375 |
0.225 |
0.15 |
0.075 |
|
驱动源 |
电动装置 |
|||
|
适用温度(℃) |
丁腈橡胶 |
硅橡胶 |
氟橡胶 |
|
|
-20-100 |
-20-200 |
-20-300 |
||
|
适用介质 |
煤气等有毒,有害气体 |
|||
|
启闭时间(S) |
≤ 60 |
|||
|
主要零部件材料 |
阀体,闸板为碳钢;丝杆为合金钢;螺母为锰铜合金,球墨铸铁;伸缩器为不锈钢 |
|||
六、F9T43X电动推杆盲板阀规格尺寸
|
公称通径DN(mm) |
外形尺寸(mm) |
||||
|
D |
D1 |
b |
n-φd |
L |
|
|
300 |
440 |
395 |
18 |
12-φ22 |
500 |
|
350 |
490 |
445 |
18 |
12-φ22 |
600 |
|
400 |
540 |
495 |
24 |
16-φ22 |
600 |
|
450 |
595 |
550 |
24 |
16-φ22 |
600 |
|
500 |
645 |
600 |
26 |
20-φ22 |
600 |
|
600 |
755 |
705 |
26 |
20-φ26 |
600 |
|
700 |
860 |
810 |
26 |
24-φ26 |
600 |
|
800 |
975 |
920 |
35 |
24-φ30 |
800 |
|
900 |
1075 |
1020 |
35 |
24-φ30 |
800 |
|
1000 |
1175 |
1120 |
35 |
28-φ30 |
800 |
|
1100 |
1275 |
1220 |
35 |
36-φ30 |
800 |
|
1200 |
1375 |
1320 |
35 |
32-φ30 |
800 |
|
1300 |
1475 |
1420 |
35 |
36-φ30 |
800 |
|
1400 |
1575 |
1520 |
35 |
36-φ30 |
800 |
|
1500 |
1675 |
1620 |
35 |
36-φ30 |
850 |
|
1600 |
1790 |
1730 |
35 |
40-φ30 |
850 |
|
1800 |
1990 |
1930 |
35 |
44-φ30 |
1100 |
|
2000 |
2190 |
2130 |
35 |
46-φ30 |
1100 |
温馨提示:
本文中所有文字、数据、图片均只适用于参考。需要查看更多的F9T43X电动推杆盲板阀性能参数、结构尺寸参数、价格等详情,或要求高质量印刷样本,请联系我们。