ZYC自力式压差控制阀
产品概况
产品型号:ZYC
公称压力:1.6MPa
公称通径:15~125mm
适用介质:水、油等非腐蚀性液体
适用温度:0~100℃
压差控制范围:定压差型10KPa、20KPa、30KPa
法兰标准:GB/T 17241.6 GB/T 9113
试验标准:GB/T 13927 API598
ZYC自力式压差控制阀概述:
百钢阀门集团生产销售的ZYC型自力式压差控制阀,是一种利用介质自身的压力变化进行自我控制而保持流经该被控系统介质压差不变的节能产品。适用于供暖方式采用双管系统的压差控制,保证系统的压差基本不变,减低噪音,平衡阻力,消除热网的水力失调。
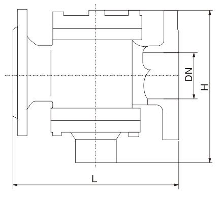
ZYC自力式压差控制阀主要外型尺寸:

| DN(mm) | 连接方式 | L(mm) | H | H1 | 流量m3/h | 适用介质 | 介质温度 | 主要零件材料 |
| 15 | 螺纹 | 110 | 72 | 98 | 0.2-1 | 水 | 0~100℃ |
阀体,上盖和下盖 为铸造黄铜,阀芯 为铜,膜片为尼龙 强化橡胶,弹簧为 不锈钢 |
| 20 | 110 | 72 | 98 | 0.3-1.5 | ||||
| 25 | 115 | 82 | 102 | 0.5-2 | ||||
| 32 | 法兰 | 160 | 91 | 94 | 1-4 | |||
| 40 | 200 | 147 | 112 | 1.5-6 | ||||
| 50 | 215 | 120 | 112 | 2-8 | ||||
| 65 | 220 | 125 | 120 | 3-12 | ||||
| 80 | 275 | 188 | 133 | 5-20 | ||||
| 100 | 290 | 208 | 160 | 10-52 | ||||
| 125 | 310 | 226 | 175 | 15-45 | ||||
| 150 | 350 | 258 | 195 | 30-80 | ||||
| 200 | 430 | 301 | 230 | 40-180 | ||||
| 250 | 520 | 367 | 265 | 100-300 | ||||
| 300 | 635 | 430 | 300 | 150-500 | ||||
| 350 | 670 | 504 | 340 | 200-700 |
温馨提示:
本文中所有文字、数据、图片均只适用于参考。需要查看更多的ZYC自力式压差控制阀性能参数、结构尺寸参数、价格等详情,或要求高质量印刷样本,请联系我们。