Z43H带导流平板闸阀
产品概况
产品型号:Z43H
公称通径:DN6-2000mm
公称压力:1.0-32Mpa
连接方式:法兰、焊接、螺纹等
主体材质:WCB、LCB、A105、CF8、CF3、CF8M、CF3M、C5、WC6
传动方式:手动、蜗轮传动、电动、气动、液动、电液动等
使用介质:水、蒸汽、油、酸碱类等
Z43H带导流平板闸阀概述
百钢阀门集团生产销售的Z43H带导流平板闸阀适用于Class150~900/PN1.0~16.0MPa,工作温度-29~121℃的石油、天然气、水、油品等管路上,用于截断或接通管路中的介质。
Z43H带导流平板闸阀应用范围
平板闸阀适用于天然气,石油,化工,环保,城市管道,燃气管线等输送管线,放空系统和汽储存装置上,用作启闭设备。
Z43H型带导流孔单闸板式平板闸阀适用于天然气开采和净化的长输管线。
Z43H带导流平板闸阀结构特点
1、阀座采用O形密封圈密封和施加预紧力的浮动阀座结构,使平板闸阀进出口双向密封;并且该结构的启闭力矩仅为普通阀门的1/2,能达到轻松开、关阀门
2、在全开时,通道平滑为直线,流阻系数极小,无压力损失,可通毛球清扫管线
3、采用带自密封能力的填料结构,无需经常调节,开、关极为轻便,且密封性可靠,填料函处设有辅助密封油脂注入结构,密封性能可靠,真正达到零泄漏;解决了通用阀门填料处容易外漏的弊病。
4、平板闸阀关闭时能自动卸掉内腔高压,保证使用安全
5、全封闭结构,防护性能好,可适应全天候要求
1.阀座的密封结构应为弹性有预紧力,上、下游密封座同时密封的结构。阀座与密封物间始终为面对面密封。
2.阀座有自清洗功能,并且在阀门开启或关闭过程中不受气流的直接冲刷。阀座应由有润滑、不磨损材料制成。
3.阀门执行机构的故障不会影响到阀门的其它部分,维修和更换工作能够在不拆下阀门的情况下进行。
(1) 轭架套管 – 铝青铜轭架套管配置针形止推轴承,较大程度减少操作扭矩。
(2) 阀杆 – 螺纹长度直到托架;销钉和点焊;具有稳定性。
(3) 压力密封 – 结构简单,配置分段扣环和镀银低碳钢垫圈,有助于拆卸和实现较好的阀帽密封。
(4) 阀座环 – 焊接阀座环垂直于流动通道,易于维护。
(5) 执行机构 – 这些阀门可以配置电动、液动或气动执行机构。DN300以下配置标准手动手轮,DN350以上配置斜齿轮操作机构。
(6) 轭架 – 完全装配式轭架通过抗震测试,易于维护和安装执行机构。
(7) 压盖 – 两件式,自调节压盖,避免被弹出。
(8) 整体后座 – 硬面,使用寿命最长。
(9) 阀瓣 – 弹簧负载阀瓣能够自行调节,减少执行机构的扭矩需求。
(10) 整体止动 – 整体铸造托架止动装置,定位组装的托架阀瓣,使得阀座更加稳定可靠。
Z43H带导流平板闸阀标准规范
设计制造标准:JB/T 5298
结构长度标准:JB/T 5298
连接法兰标准:GB/T 9113
压力温度等级:GB/T 12224-2005
试验检验标准:GB/T 13927-2008、JB/T 5298
Z43H带导流平板闸阀 零件材料与工况
|
零件名称 |
零部件材料 |
|||
|
JB/T7298 |
API 6D |
|||
|
阀门/阀盖 |
WCB |
WCB |
A352-LCB |
A351-CF8M |
|
闸板 |
2Cr13+ENP |
20CrMoV+STL |
ANSI 410+ENP |
ANSI 316+ENP |
|
阀杆 |
2Cr13 |
2Cr13 |
A182-F6a |
A182-F316S |
|
阀座 |
25+PTFE |
20CrMoV+STL |
A105+PTFE |
A182-F316+PTFE |
|
填料 |
NBR/FPM |
柔性石墨 |
聚四氟乙烯 |
|
|
垫片 |
18-8/柔性石墨 |
|||
|
螺栓 |
35 |
35CrMo |
A193-B7M |
A193-B8 |
|
适用温度 |
-29~250℃ |
-29~550℃ |
-46~250℃ |
-40~200℃ |
|
适用介质 |
水、油品 |
蒸汽、油品 |
丙烷、乙烯 |
硝酸类 |
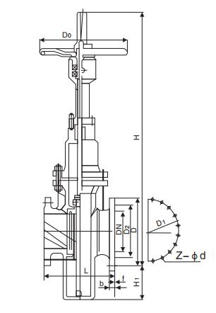
Z43H带导流平板闸阀主要尺寸及重量

|
公称通径 |
结构长度L |
H |
H1 |
||||
|
DN |
NPS |
手动 |
伞齿轮传动 |
气动 |
电动 |
||
|
25 |
11/4 |
127 |
\ |
\ |
\ |
\ |
\ |
|
32 |
11/4 |
165 |
385 |
\ |
\ |
\ |
63 |
|
40 |
11/2 |
165 |
385 |
\ |
\ |
\ |
63 |
|
50 |
2 |
178 |
415 |
\ |
\ |
\ |
74 |
|
65 |
21/2 |
190 |
462 |
\ |
\ |
\ |
83 |
|
80 |
3 |
203 |
563 |
\ |
\ |
\ |
95 |
|
100 |
4 |
229 |
648 |
\ |
\ |
\ |
109 |
|
125 |
5 |
254 |
715 |
\ |
\ |
\ |
125 |
|
150 |
6 |
267 |
836 |
\ |
636 |
979 |
144 |
|
200 |
8 |
292 |
1034 |
\ |
796 |
1096 |
176 |
|
250 |
10 |
330 |
1230 |
\ |
960 |
1297 |
204 |
|
300 |
12 |
356 |
1405 |
1460 |
1118 |
1520 |
240 |
|
350 |
14 |
381 |
1607 |
1642 |
1305 |
1768 |
263 |
|
400 |
16 |
406 |
1775 |
1865 |
1425 |
1935 |
293 |
|
500 |
20 |
457 |
2176 |
2251 |
1724 |
2300 |
350 |
|
600 |
24 |
508 |
2564 |
2642 |
1995 |
2770 |
403 |
|
700 |
28 |
610 |
2950 |
3128 |
2293 |
3570 |
450 |
|
800 |
32 |
660 |
3335 |
3515 |
2675 |
3985 |
507 |
|
900 |
36 |
711 |
3720 |
3900 |
3060 |
4370 |
555 |
|
1000 |
40 |
811 |
4105 |
4290 |
3445 |
4755 |
610 |
温馨提示:
本文中所有文字、数据、图片均只适用于参考。需要查看更多的Z43H带导流平板闸阀性能参数、结构尺寸参数、价格等详情,或要求高质量印刷样本,请联系我们。