VB-7000电动二通阀
产品概况
产品型号:VB-7000
公称通径:DN65~200mm
介质温度:2℃~95℃
适用介质:蒸汽、冷水、热水
应用范围:用于空气调节、热通风、热处理厂的工业和工行业的流体控制
设计标准:GB/T17213
检验标准:GB/T4213
法兰标准:JIS B220、JB/T79、ANSI B16.5-1981、GB/T9113、HG20594-97、HG20618-97等
一、VB-7000电动二通阀工作原理
百钢阀门集团生产销售的VB-7000电动二通阀驱动器是由可逆同步马达驱动,并带磁性离合器。马达通过马达转子与离合器所产生的磁性作用,能在停顿的情况下产生稳定的扭力。故此当马达没有电流通过时能稳定地停顿在任何一点,当阀门全开或全关时磁离合器分离,停止调节。驱动器的递增式或比例式控制器所发讯号能使马达顺时转动或逆时转动。
二、VB-7000电动二通阀特点
24V交流电压的同步可逆转马达。 1000牛顿力。 限位磁性离合器。
动作利用齿轮传送,输出齿轮螺杆组采用绕中心轴旋转的平面滚动轴承,阀轴则采用中央螺丝管道以及定位圆片。 阀动位置指示器。
防火的ABS塑料外罩。 可附加手动控制杆。 现场安装方便。 适合23mm以下的直行程调节阀。
1、执行器选用铸铝支架及塑料外壳,体积小、重量轻。
2、选用永磁同步电机,并带有磁滞离合机构,具有可靠的自我保护功能。
3、适合多种控制信号:增量(浮点)、电压(0~10V)、电流(4~20mA)。
4、具有0~10V或4~20mA反馈信号(选配)。
5、传动齿轮采用金属齿轮,大大提高了驱动器的使用寿命。
6、功耗低、输出力大、噪音小。
7、阀体有铸铜、铸铁、球墨铸铁多种材质可供选择,以适合不同工作介质及温度的要求。
8、阀体有螺纹连接和法兰连接两种,安装方便。
9、阀体结构形式有:两通阀(单座)、两通平衡阀(平衡式)。
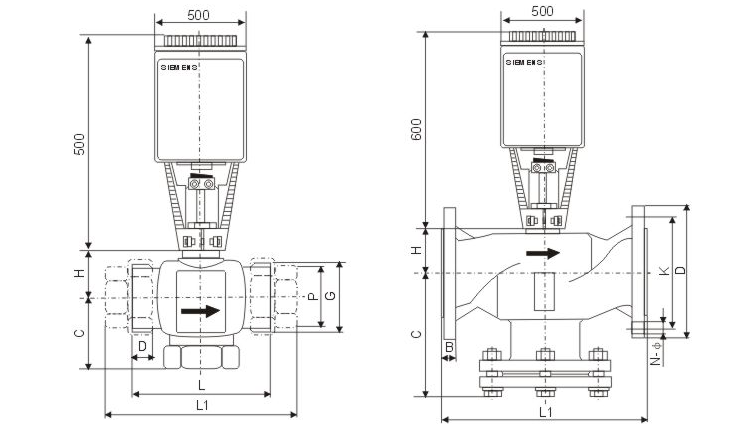
三、VB-7000电动二通阀主要连接尺寸

| 型号 | 规格 | L | H | H1 | D | C | K | n-d | 压差KPa | 重量(KG) | 行程 |
| VB-7000 | DN65 | 290 | 158 | 150 | 185 | 20 | 145 | 4-18 | 400 | 23 | 45 |
| DN80 | 310 | 195 | 185 | 200 | 20 | 160 | 8-18 | 400 | 31 | 45 | |
| DN100 | 350 | 216 | 205 | 220 | 20 | 180 | 8-18 | 300 | 39 | 45 | |
| DN125 | 400 | 237 | 230 | 250 | 22 | 210 | 8-18 | 200 | 66 | 45 | |
| DN150 | 480 | 282 | 280 | 285 | 22 | 240 | 8-22 | 100 | 87 | 45 | |
| DN200 | 533 | 289 | 340 | 340 | 30 | 295 | 12-22 | 100 | 90 | 45 |
温馨提示:
本文中所有文字、数据、图片均只适用于参考。需要查看更多的VB-7000电动二通阀性能参数、结构尺寸参数、价格等详情,或要求高质量印刷样本,请联系我们。